Фрунзенский район улица Фучика 12

Гранат

Драгоценная гармония

 
площадь

от 18.02 м²

 
стоимость

от 7,2 млн. руб.

 
завершение

2 кв. 2028

Жилой комплекс «Гранат» – это современный жилой квартал, расположенный во Фрунзенском районе, у станции метро «Бухарестская». Сочетает в себе высокое качество строительства, удобную транспортную доступность, развитую инфраструктуру. и продуманные планировки. Проект состоит из шести 13-этажных корпусов. Будет реализован в два этапа.

Территория двора благоустроена: детские и спортивные площадки, места для отдыха, озеленение и прогулочные зоны создают комфортную атмосферу для жизни. Архитектура комплекса выполнена в современном стиле, с панорамными окнами, просторными балконами и качественными фасадами. ЖК «Гранат» – это идеальный выбор для тех, кто ценит комфорт, безопасность и удобное расположение в Санкт-Петербурге.

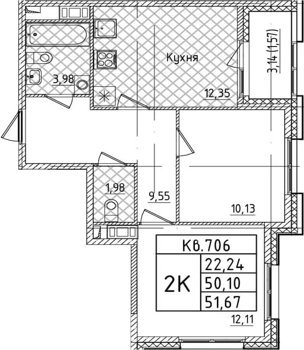
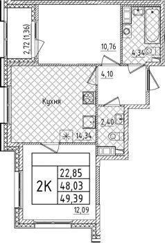
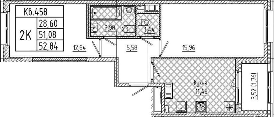
ТИПОВЫЕ ПЛАНИРОВКИ ОБЪЕКТОВ

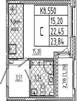
Студия

Площадь от 18.02 м2

от 7.500.222 руб

1-комнатная

Площадь от 28.24 м2

от 9.657.541 руб

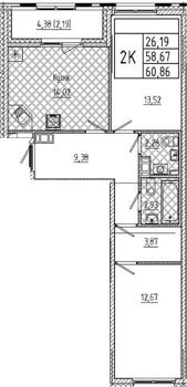
2-комнатная

Площадь от 45.45 м2

от 15.472.641 руб

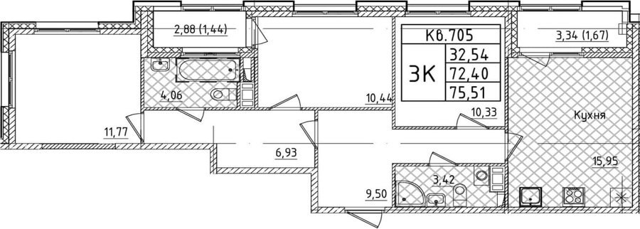
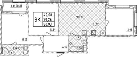
3-комнатная

Площадь от 75.51 м2

от 23.376.553 руб

возьмите максимум от вашей покупки

акции ограничены, успейте воспользоваться уникальными предложениями

Рассрочка 0%

Несколько вариантов удобной рассрочки с первоначальным взносом от 15%. Беспроцентная рассрочка на 12 мес. скидка с БС 10%.

Ипотека, включая семейную

с выгодными ставками от 2,2%

ипотечный калькулятор

укажите параметры и рассчитайте ежемесячный платеж

7 600 000 29 500 000
20% 100%
1
1 30
Пожалуйста, укажите телефон
Согласен с политикой обработки персональных данных
Необходимо согласие

Гранат ЭТО

Территория внутренних дворов закрыта для автомобилей. Все пространство двора разделено на три тематические зоны, в каждой из которых есть своя доминанта: воздушный мост, арт-объект и акцентная горка. Деревья, кустарники, высокие газоны, рельеф со злаковыми растениями создают ощущение близости к природе. Каждый житель здесь может найти место по душе – будь то тихий уголок для отдыха, активная детская площадка или зона для встреч с соседями. Подземный отапливаемый паркинг с прямым лифтовым доступом, кладовыми и велопарковками решает вопрос хранения транспорта, а открытая стоянка дополняет его. Безопасность обеспечивается бесключевым доступом через домофоны с интеграцией в мобильное приложение и видеонаблюдением.

Дом в стиле модернизм спроектирован при участии ведущего российского бюро Intercolumnium под руководством архитектора Евгения Подгорнова. Запоминающийся образ создан благодаря пластике фасадов и дизайну входной группы, отсылающему к граням драгоценного камня. Среднеэтажная застройка – 13 этажей. Фасады вентилируемые, облицованы керамогранитом, что обеспечивает не только эстетику, но и долговечность.

Главный вход в жилой комплекс будет организован с ул. Фучика в корпусе 6. Через лобби можно будет попасть в соседние секции, а также на закрытую дворовую территорию. Двухуровневое витражное остекление связывает пространства внутреннего двора и улицы, наполняя помещение светом и создавая ощущение простора. Сочетание оттенков красного граната со сдержанной палитрой серого и белого придают атмосферу изысканности и уюта. Высота потолков в лобби достигает 6 метров, подчеркивая простор, а теплые полы и безбарьерный доступ с уровня земли обеспечивают комфорт для всех жителей. Второстепенные входные группы и МОП продолжают стилистику. Подогрев площадок перед входами. Колясочные в каждом подъезде.
главного лобби.

В квартирах продуманы эргономичные планировки, позволяющие максимально эффективно использовать пространство. Уникальные планировки: большие кухни-гостиные от 20 м², видовые угловые кухни-гостиные, кухни-гостиные с выделенной нишей под кухню, мастер-спальни, ванные с окном Clerestory, студии с 2 окнами, квартиры с зонированием пространства на гостевую и приватную зоны. Высота потолков 2,73 м с 1 по 12 этаж, на 13 этаже –3 м. Варианты отделки: чистовая, белая, без отделки.


  • Местоположение ЖК "Гранат" обладает отличной транспортной доступности — отсюда легко доехать и в центральную часть города, и в окраинные районы: всего 10 минут пешком до станции метро «Бухарестская» и 20 минут до метро «Международная». Можно без пересадок на наземном транспорте за 20 минут добраться до Невского проспекта или на личном автомобиле до аэропорта Пулково. Все остановки транспорта расположены в пешей доступности от объекта. По Софийской улице можно удобно выехать на КАД. Вблизи объекта находится уютный живописный сквер Спасателей, а за 10 минут можно добраться до Московского парка Победы или парка Интернационалистов.

  • Участок расположен в районе со сформированной социальной и коммерческой инфраструктурой. По близости комплекса расположено несколько высших учебных заведений, городская больница, несколько школ и детских садов, а также 3 крупных торговых комплекса. Согласно плану развития территории на соседнем участке будут построены школа и детский сад.

ОНЛАЙН КОНСУЛЬТАЦИЯ

получите больше информации о проекте
и задайте свои вопросы

в поисках подходящей квартиры?

На сайте не весь каталог.
Укажите параметры недвижимости, мы подберем варианты в течение дня бесплатно.

Пожалуйста, укажите телефон
Согласен с политикой обработки персональных данных
Необходимо согласие
Написать в мессенджер